top of page



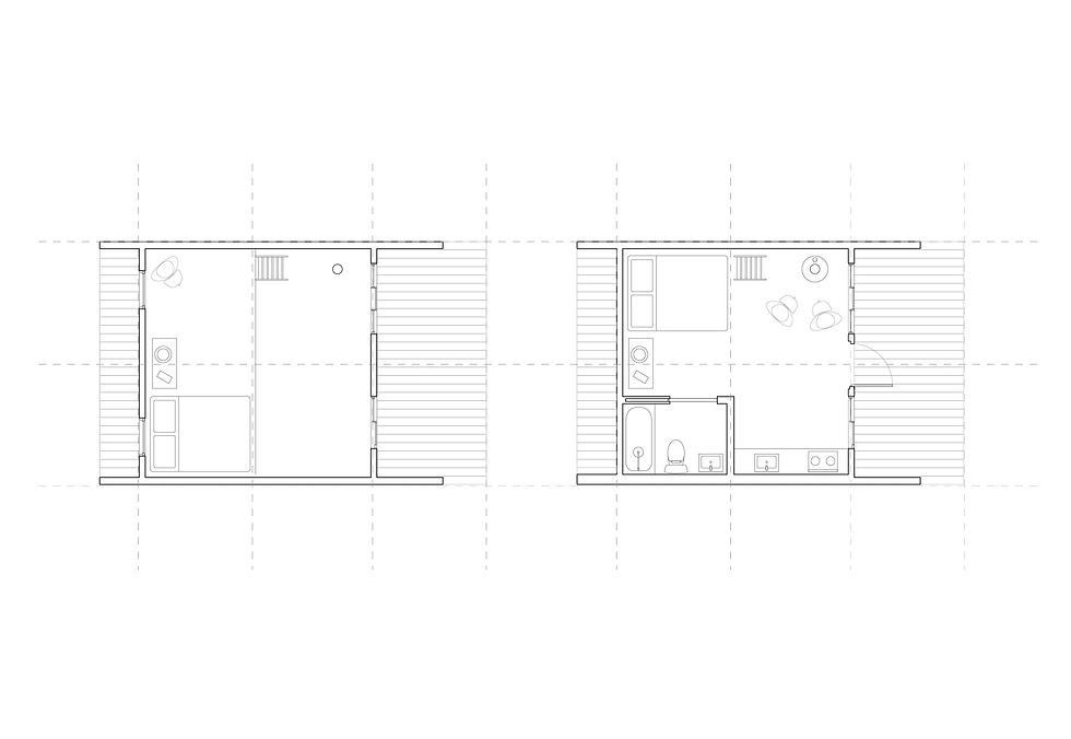
TRAIL-FORM

With advanced insulation, weather-resistant materials, and efficient space use, the TRAIL-FORM provides a self-sufficient, adaptable solution for extreme environments.
Ideal for remote Arctic housing, eco-tourism, or disaster relief, this deployable unit combines modern design with rugged durability, ensuring comfort and resilience in the most challenging climates.
bottom of page